Bildergalerie + Konzeptbeschreibung
Visionäres Luftbild: Quartier Molkenmarkt/Klosterviertel in Berlin-Mitte. Copyright: Pakertharan Jeyabalan, Architekt
Visionen für eine zukünftige attraktive Bebauung auf kleineren Grundstücken am Molkenmarkt/KlosterviertelPlanerische Vision - Wider die GleichförmigkeitGrundansatz unseres Vorschlags ist, dass wir vom Bild des Stadtraums für die Bebauung ausgehen und erst dann zur Grundstücksgröße kommen wollen.Die Bauherren, die das beste Bild für den Stadtraum anbieten und die die besten Nutzungsvorschläge bieten, sollen den Zuschlag für die Realisierung erhalten.
Visionäres Luftbild: Quartier Molkenmarkt/Klosterviertel in Berlin-Mitte. Copyright: Pakertharan Jeyabalan, ArchitektVisionen für eine zukünftige attraktive Bebauung auf kleineren Grundstücken am Molkenmarkt/KlosterviertelPlanerische Vision - Wider die GleichförmigkeitGrundansatz unseres Vorschlags ist, dass wir vom Bild des Stadtraums für die Bebauung ausgehen und erst dann zur Grundstücksgröße kommen wollen.Die Bauherren, die das beste Bild für den Stadtraum anbieten und die die besten Nutzungsvorschläge bieten, sollen den Zuschlag für die Realisierung erhalten.
Unsere Fotos und Visionen zum Molkenmarkt in Berlin-Mitte Copyright: Alle Fotos von Hans-Karl Krüger und Anne Schäfer-Junker
Unsere Fotos und Visionen zum Molkenmarkt in Berlin-MitteCopyright: Alle Fotos von Hans-Karl Krüger und Anne Schäfer-Junker
Planerische Vision – Wider die Gleichförmigkeit
Autor: Dipl. Ing. Hans-Karl Krüger
Die Wiederherstellung der Bebauung des Molkenmarktes soll im Ansatz mit einer Neuinterpretation der Gestaltung um 1930 erfolgen. An den historischen dreieckigen Platz grenzt heute das neue Nikolaiviertel mit dem Ephraim-Palais auf der einen Dreiecksseite an und auf der gegenüberliegenden Dreiecksseite ist die Neue Münze mit dem Palais Schwerin ein weiterer Bezugsort.
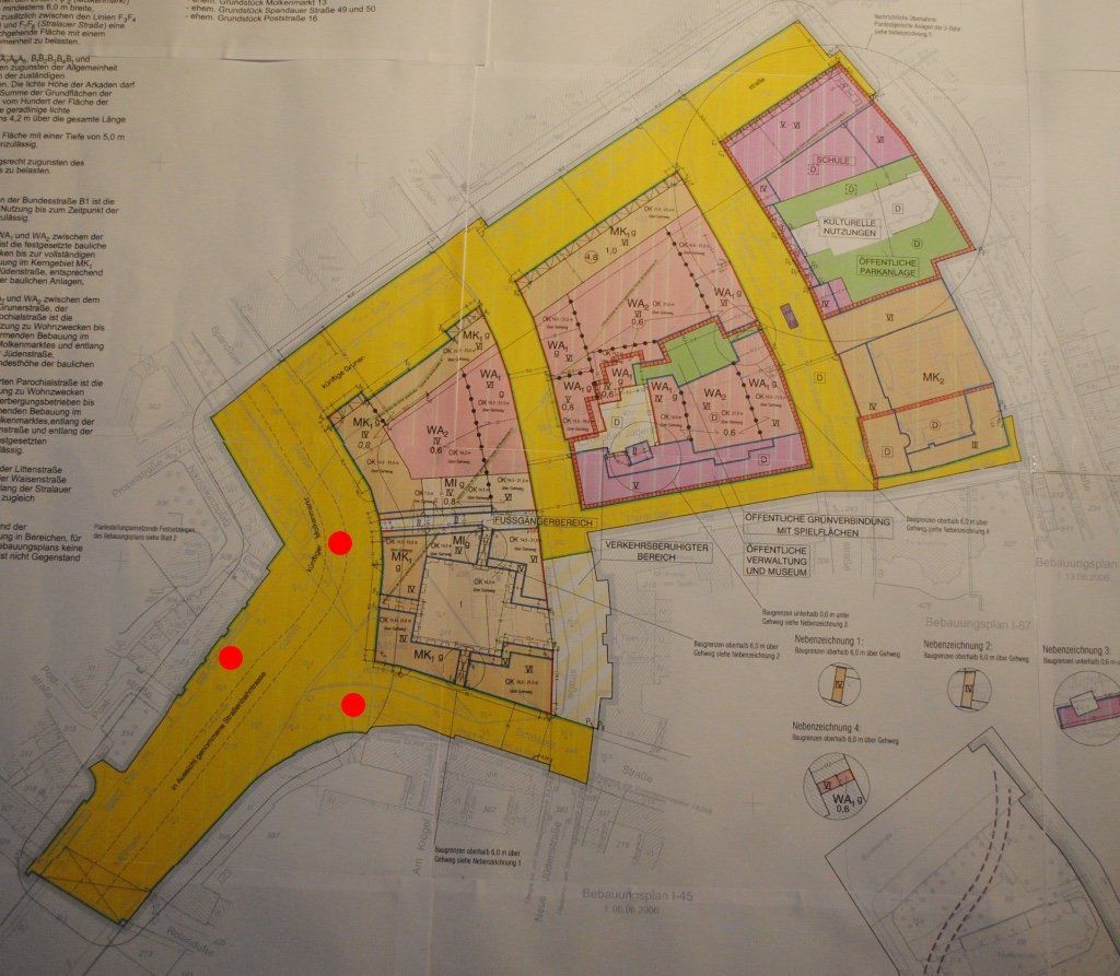
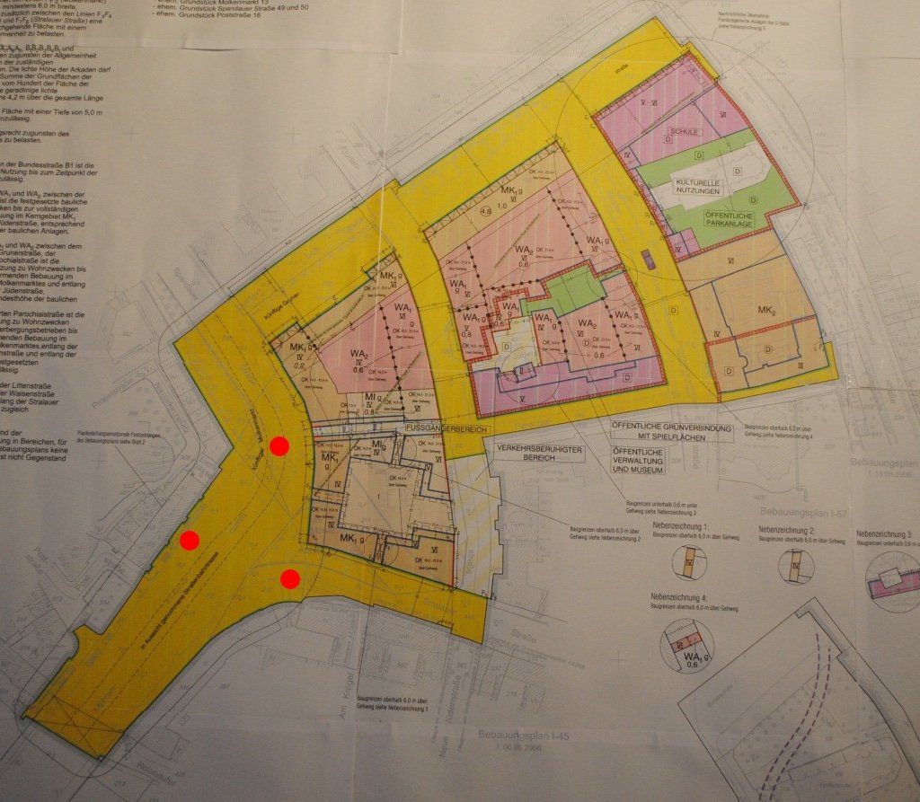
Angestrebt wird deshalb, dass gerade die fehlende Dreiecksseite, die jetzt im Zuge der Neubebauung hergestellt werden kann, die noch vorhandenen historischen Bezüge in der Nachbarbebauung aufnimmt. Als erster Schritt zu einer Bebauung des Quartiers am Molkenmarkt ist die Umverlegung der stadtautobahnähnlichen Grunerstraße auf die in dem Bebauungsplan festgesetzte Lage erforderlich. Aus den historischen Ansichten erkennt man, dass zum Molkenmarkt hin mehrere Gebäude gestanden haben, die einen lebendigen Stadtraum zeigen. Diese Attraktivität des Platzraums sollte durch eine Neubebauung zurückgeholt werden.
Urbaner Platzraum
Da der Platzraum durch ein starkes Verkehrsaufkommen gekennzeichnet ist und sicher auch bleiben wird, sollte durch ausreichende Fußgängerüberwege dafür gesorgt werden, dass keine Trennung von den vorhandenen Funktionen der angrenzenden Stadtviertel auftritt. Nicht der Fahrzeugverkehr hat Vorrang, sondern die Fußgänger. Es sollte billigend in Kauf genommen werden, dass der Fahrzeugverkehr an dieser Stelle zunehmend unattraktiv wird, denn das trägt auch gleichzeitig zu einer gewissen Beruhigung bzw. Entschleunigung bei.
Das Quartier am Molkenmarkt unterlag bauhistorisch immer einem sehr starken Wandel. Trotzdem gab es einige Gebäude, die einen besonderen Charakter hatten und auf die an dieser Stelle hingewiesen werden muss, weil sie eine Zeit lang eine charakteristische Bedeutung für die Platzgestaltung hatten. Die Vernetzung des Molkenmarktes mit seinem Umfeld ist dabei eines der wesentlichsten Anliegen.
Die unterschiedlichen Nutzungen, wie beispielsweise im Nikolaiviertel mit der sehr starken touristischen Ausrichtung und das Palais Schwerin mit seiner Kunst- und Musikausrichtung, erfordern Antworten bei der Belegungs-Nutzung bei der Neubebauung am Molkenmarkt. Es sollte das Ziel sein, dass durch diese Neubebauung wieder eine stadträumliche Verbindung hergestellt wird, die zur Zeit aufgrund der überdimensional ausgebauten Grunerstraße gänzlich unterbrochen ist. Verbindungen durch Verdichtung des Stadtraumes zu schaffen, muss das Ziel sein.
Gestaltungsmaxime und Grundstücksvergabe
Grundansatz unseres Vorschlags ist, dass wir vom Bild des Stadtraums für die Bebauung ausgehen und erst danach zur Grundstücksgröße kommen wollen. Die Bauherren, die das beste Bild für den Stadtraum anbieten und die die besten Nutzungsvorschläge bieten, sollen den Zuschlag für die Realisierung erhalten.
Um ein differenziertes Fassadenbild zu erhalten, sollten wieder einzelne Baugrundstücke mit ihren typischen Abmessungen von ca. 20 m Grundstücksbreite gebildet werden. Abgeleitet von der Grundstücksbreite ergeben sich dann verwertbare Grundstücksgrößen entsprechend den Festsetzungen des rechtsgültigen Bebauungsplanes. Dabei ist es wichtig, dass tatsächlich einzelne Baugrundstücke gebildet werden, die dann in jedem Fall unterschiedlichen Bauherren zur Bebauung angeboten werden sollten. 
Wesentlich ist dabei der Grundgedanke, dass jeder Bauherr seinen Darstellungswillen durch die persönliche Auswahl eines Architekten zum Ausdruck bringen soll. Es gilt zu vermeiden, dass große zusammenhängende Bebauungen durch einen Bauherrn mit einer einheitlichen Bebauung erfolgen. Auch die Zusage, dass innerhalb einer zusammenhängenden Bebauung unterschiedliche Architekturen angeboten werden können, verhilft nur bedingt dazu, dass eine qualifizierte Vielfalt entsteht. Dieser nur vordergründigen Vielfalt fehlt der persönliche Darstellungswille des einzelnen Bauherrn. Bauherr kann aber auch z. B. eine Baugemeinschaft sein, denn auch diese könnte ihren gemeinschaftlichen Gestaltungswillen in dem eigenen Gebäude zum Ausdruck bringen. Das Gleiche sollte auch von Baugenossenschaften erwartet werden.
Es liegt nahe für das Planungsgebiet überwiegend öffentliche Wohnungsbaugesellschaften mit der Bebauung zu beauftragen. Dabei ist aber auch bei diesen darauf zu achten, dass der Grundgedanke einer jeweils eigenständigen Formensprache jeder Wohnungsbaugesellschaft individuell zum Ausdruck kommt. Hohe Anforderungen an eine traditionell historische, berlintypische Fassadengestaltung und ein guter Nutzungsmix bei den Wohnungsgrößen sollte Ansporn zur Realisierung sein.
Berlintypische Fassadengestaltung
Bei der äußeren Gestaltung geht es dabei nicht darum, eine Rekonstruktion des Stadtbildes von 1930 zu erzeugen, sondern um eine Interpretation der alten, typischen Berliner Fassaden und Gebäudetypologien. Eine moderne undifferenzierte, gleichförmige Blockrandbebauung wird dies nicht abbilden können, sondern nur eine Bebauung auf mehreren einzelnen Grundstücken durch unterschiedliche Bauherren.
Es wird angestrebt, dass sich im Fassadenbild die Gestalttypologie der Berliner Häuser der Gründerzeit wiederfindet. Wenn man sich die Immobiliennachfrage ansieht, wird diese Haustypologie als Altbau, aber auch als angepasster Neubau bevorzugt und als attraktiv empfunden.
Diese stadttypische Gestaltungsausprägung für Berlin bildet den Charakter, den alle mit dem Stadtbild verbinden. Da wir uns in dem Gebiet Molkenmarkt im Herzen der historischen Stadt befinden, sollte besonders dort dieser berlintypische Charakter als verbindendes und prägendes Element festgeschrieben werden. Dabei geht es nicht um Historisierendes, sondern um die Weiterentwicklung der berlintypischen Fassaden in einer neuen Formensprache.
Gestaltungssatzung
Um sicher zu stellen, dass dieser Prozess auch erreicht wird, ist es erforderlich, dieses Ziel der Vielfalt rechtlich verbindlich vorzugeben. Diese Festlegung sollte durch eine Gestaltungssatzung erfolgen, die vom Abgeordnetenhaus zu verabschieden ist.
Die im Bebauungsplan festgelegten einzelnen Baublöcke sollten rechtlich so aufgeteilt werden, dass gestalterisch unterschiedlicher Stadtraum entstehen kann. Dabei können sowohl die öffentlichen Wohnungsbaugesellschaften und Baugenossenschaften mit ihrer immateriellen Kulturerbeverpflichtung, als auch Bauherrengemeinschaften als Bauherren berücksichtigt werden.
Grundstücksvergabe
Bei der Vergabe an potentielle Bauherren sollten in jedem Fall verstärkt Genossenschaften berücksichtigt werden, denn ihr bürgerliches Engagement ist geprägt von sozialen Werten wie Ehrlichkeit, Verantwortung für den Einzelnen und für die Gemeinschaft. Ihre kulturelle Bedeutung als identitätsstiftende Gemeinschaft, zeigt sich auch in der Gestaltung der Gebäude, die von dieser Gemeinschaft geplant und finanziert werden.
Ob ggf. auch private Bauherren in speziellen Lagen und bei besonderen Entwicklungsverpflichtungen berücksichtigt werden können, muss von einer Steuerungsgruppe ermittelt werden.
Die Steuerung der Grundstücksvergabe soll durch eine Gruppe aus Verwaltung, Politik und kompetente Bürgervertretungen erfolgen. Die Steuerungsgruppe kann analog zu einem Sanierungsverfahren als städtebauliche Entwicklungsmaßnahme konzipiert und rechtlich durch das Abgeordnetenhaus sanktioniert werden.
Der Grundsatz der Grundstücksvergabe sollte so geregelt werden, dass die Interessenten sich durch ihre Bebauungsvorschläge und Nutzungsvorstellungen qualifizieren, die das Auswahlkriterium bilden. Es soll in jedem Fall vermieden werden, dass ein Block ausschließlich von einem einzigen Bauherrn bebaut wird. Alle Interessenten können für jede Stelle im Planungsgebiet ihre speziellen Nutzung- und Planungsvorstellungen darlegen. Die Auswahl erfolgt dann aufgrund der eingereichten Planungs- und Nutzungsvorstellungen durch die Steuerungsgruppe.
Es ist gleichzeitig Ziel, eine soziale Mischung bei den Mietern und Gewerbetreibenden zu erreichen. Dabei steht im Vordergrund, dass sozial verträgliche Mieten für den Großteil der Wohnungen angeboten werden müssen, was auch als rechtliche Vorgabe festzuschreiben ist. Ferner sollten auf dem Sektor der Gewerbeflächen vergünstigte Angebote geschaffen werden, um eine Belegungs-Durchmischung bei Wohnungsmietern und Gewerbetreibenden zu erreichen.
Da der Bebauungsplan vorschreibt, dass zur Lärmabschirmung entlang der Gruner- und Stralauer Straße vor jeglichem Wohnungsbau ein Gewerbebauriegel für Büronutzungen, Hotels und Wohnformen mit begrenzter Dauer zu errichten ist, könnten an dieser Stelle auch Privatinvestoren neben den öffentlichen Wohnungsbaugesellschaften zum Zuge kommen.
Ausblick
Qualität nach aussen, Nutzungsvielfalt nach innen und eine ausgewogene soziale Mischung der Mieter sollte ein lebendiges berlintypisches Quartier entstehen lassen. Sämtlichen Beteiligten ist diese Vorgabe zu machen, an der alle im Ergebnisse gemessen werden. Das Quartier Molkenmarkt könnte so zu einem Vorbild für die Reparatur der historischen Innenstadt Berlins werden.
21.3.2021















